Informacje
Nowoczesny kocioł grzewczy KG 10kW - 5 klasy spełnia wymogi normy PN-EN 303-5:2012 oraz ECODESIGN (Ekoprojekt). Konstrukcja kotła pozwala na ograniczenie szkodliwych spalin do atmosfery (CO, NOx, OGC) oraz pyłów.
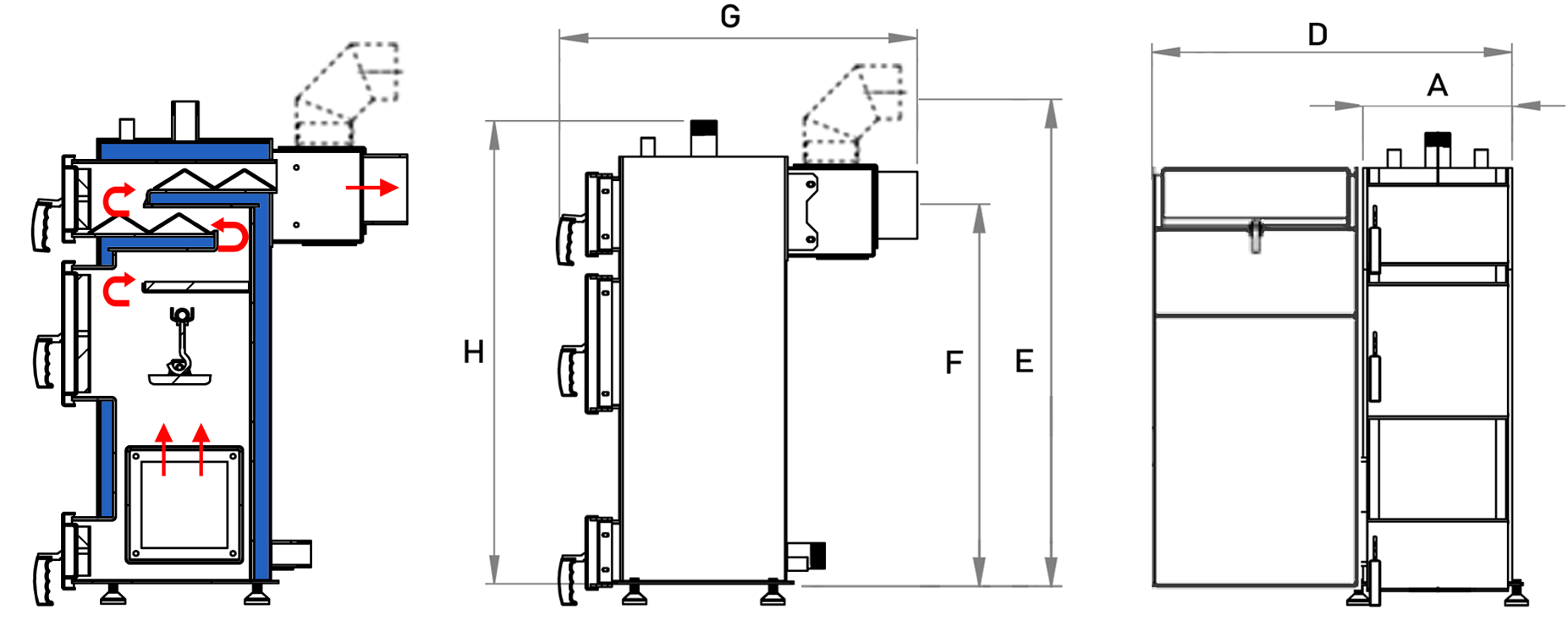
Kocioł KG 10kW klasyfikuje się do uzyskania dofinansowań z Urzędów Gmin i Miast. Kocioł ten jest kotłem górnokanałowym, jego wielką zaletą jest intuicyjna obsługa i dostęp do kanałów poprzez otwarcie przednich drzwiczek.
Znajduje zastosowanie w instalacjach centralnego ogrzewania i ciepłej wody zarówno grawitacyjnych jak i pompowych. Przeznaczony jest do ogrzewania obiektów mieszkalnych jedno i wielorodzinnych, obiektów użyteczności publicznej takich jak szkoły, urzędy, obiekty handlowe, obiekty produkcyjne i inne. Dzięki małym gabarytom kocioł KG 10kW może być instalowany w kotłowniach mało powierzchniowych, w których ustawienie kotła o większym gabarycie jest niemożliwe.
Kocioł
KG 10kW wyposażony jest w automatyczny zespół podawania paliwa i dawkowania powietrza do spalania oraz zbiornik opału. Dzięki zastosowaniu palnika retortowego o szerokim zakresie pracy (30 -100%) uzyskano najbardziej ekonomiczny proces spalania w systemie ciągłym.
Transportowanie opału ze zbiornika do palnika retortowego odbywa się za pomocą podajnika ślimakowego. KG 10kW charakteryzuje się praktycznie bezdymnym spalaniem paliwa co skutkuje niską emisję szkodliwych związków i pyłów.
Paliwa spalane z podajnika:
 ekogroszek |
Sterowanie
Sterownik IRYD RTZ PID

IRYD RTZ Pid Fuzzy Logic KOLOR jest regulatorem przeznaczonym do kontroli pracy kotła CO z podajnikiem ślimakowym lub tłokowym (z czujnikiem położenia podajnika). Regulator steruje rozbudowaną instalacją grzewczą. Specjalnie zaprojektowane menu umożliwia stopniowe uaktywnianie kolejnych funkcji oraz możliwości regulatora.
Regulator ten posiada specjalny algorytm pracy pid fuzzy logic, który po określeniu przez użytkownika maksymalnej i minimalnej mocy kotła potrafi w sposób płynny dobierać odpowiednie dawki opału w zależności od obciążenia instalacji oraz rodzaju opału. Regulator steruje w sposób ciągły pracą dmuchawy dobierając do danej prędkości dmuchawy odpowiednią ilość opału. Ponadto wersja ta wyposażona jest w dodatkowy algorytm pid wpływający na temperaturę spalin regulujący moc kotła tak aby wartość temperatury spalin nie przekraczała maksymalnej zadanej przez użytkownika. Te nowoczesne algorytmy sterowania pozwalają zaoszczędzić na ilości spalanego opału, a co za tym idzie ma to korzystny wpływ na środowisko naturalne.
FUNKCJE REGULATORA:
- płynne sterowanie obrotami dmuchawy
- sterowanie podajnikiem z możliwością wycofania przy zacięciu (dostępne tylko w przypadku podajnika tłokowego)
- sterowanie pompą obiegową CO
- sterowanie pompą ładującą zasobnik CWU
- sterowanie drugim obiegiem grzewczym - pompą mieszacza lub pompą instalacji podłogowej
- sterowanie siłownikiem zaworu mieszającego
- sterowanie pompą cyrkulacyjną, która może być używana w obiegu cyrkulacji CWU lub cyrkulacji CO
- obsługa dwóch PILOTÓW lub termostatów pokojowych (dwa niezależne obiegi)
- możliwość sterowania pogodowego temperaturą kotła jak i obiegiem mieszacza*
- sterowanie tygodniowe obiegu CO, mieszacza/podłogi, CWU, cyrkulacji CWU
- tryby pracy ZIMA, LATO, PRIORYTET CWU, BRAK CWU
- 5 zestawów programowalnych parametrów pomiędzy którymi można przełączać się podczas użytkowania regulatora
- obsługa czujnika otwarcia pokrywy kosza
- algorytm zliczający ilość spalanego opału
- dodatkowy algorytm pid monitorujący temperaturę spalin*
- funkcja anty zamarzania poniżej 5°C
- funkcja antystop zapobiegająca zastanie pomp
*czujnik pogodowy i czujnik spalin należy zakupić osobno.
Do pobrania